厨房师傅反映厨房温度过高,闷热无比,怎么回事?
返回列表来源:湖北雅美装饰工程有限公司 发布日期:2016-09-05
分享
加入收藏 关注:-
记雅美世界®装饰在武汉商业综合体内餐饮单位的一次排烟改造设计及施工
近年来, 随着各种大型综合商业体的蓬勃发展,与之相伴相生的各种连锁餐饮行业也纷纷入驻, 餐饮业既解决了聚集人气的问题, 也很快消化了综合体的大量面积,同时餐饮也可以同时给其它业态的实体店带来人气,在某种程度上提升的顾客的购物体验,可以说是一个多赢的局面。
但是餐饮行业区别与其他业态,需各个配合的多、水 、电、 气、 空调、 通风,等有一个方面没有处理好,就影响整个系统的运行, 尤其是油烟净化与排放,往往受制与建筑结构以及其他原因,设备的配置无法满足设计需求或者设备在运行过程中发生极大的损失,以致于形成了商场串味,厨房闷热等一系列顽疾,严重的影响了商业体的档次品味和工作人员的工作环境。下面就以笔者在一起实际案例中的见闻初步探讨下商场综合体餐饮行业排烟通风问题产生的原因及解决方法。
本案例位于湖北省武汉市楚河汉界商业圈的某商业综合体四楼,该餐饮单位为全国连锁企业,自营业以来,生意火爆。该排烟和通风系统均采用物业“多对一”集中系统,由建设单位统一采购施工。但在实际使用过程中,厨房师傅多次反映厨房温度过高,闷热无比,严重影响了后厨人员的工作情绪。
接到餐饮单位的整改要求后,笔者所在单位立即派出了技术人员对该排烟系统经行了实际测量及故障分析。
经查看物业提供的排烟风机参数如下表:
但是经过技术人员的现场勘测后,风机工作的实际参数如下:


综合以上数据分析,以及现场的观察测量,很快得出初步结论:该单位排烟效果差主要是物业风机效率值偏低,致使排烟量无法满足需求,而效率值偏低的原因主要是以下两点:一是风机主风管受制于安装环境有多处来回弯头,造成管道阻力偏大,二是有其他共用风机单位私自在分支管道内加装风机,使系统内形成了负压力。
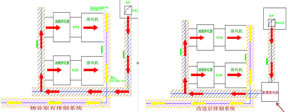
在向该餐饮单位汇报结论后,餐饮公司即刻从广州总部派出了负责基建的领导以及技术人员来武汉处理此事。经过协商后,我们提出了套解决方案,即在原有风机系统的基础上曾加新的接力风机(方案详细情况见下图),以此整个系统的压力值和风量值。
此方案主要有以下几个特点:
一、就是在管道井与风管连接处增加一台风机,经过现场勘察与测量可知此位置有足够的空间安装设备,而且对周围设备几乎不造成任何影响。
二、此处安装风机能大程度上减少风管弯头以及距离,从而减少风管的阻力,提高风机效率。
三、安装过程中只是将风机于原有主管道进行对接,对原有系统造成的损害和影响极小。能够减少对各个商户的正常排烟需求的影响。
但是此方案是建立在对整个集中系统进行改造的基础上,改造的主体应该是物业方,(此排烟系统故障的主要责任方也是物业)为此该餐饮公司召集了物业方,召开了一个专门会议进行了磋商,餐饮公司和笔者单位的技术人员从各个角度论证了改造方案的可行性以及必要性,但是物业方以“改造造成的后果损失不可控,物业公司审批程序繁琐,审批时间不可预估”为由,比较官方的拒绝了此方案。
因此,我们只能以该餐饮单位为主体重新设计方案。经过对该餐饮场所布局的仔细观察和测量,我们选定了在厨房清洗间加装新的排烟风机和新风机连接到原有的物业系统中,从末端位置来整个系统的效果。方案内容如下图
抽风机和送风机安装于洗碗间,施工期间需将洗碗间的天花拆除,原送风主管拆除,风机安装完毕后再恢复。
抽风机和送风机的安装位置有限,没有空间做消声器,噪声会比较大,所以现方案洗碗间的天花恢复采用彩钢玻镁板,可以起到一定的降噪作用。
物业管道走向复杂,且物业主烟井为多家餐厅使用,其他餐厅都加装了抽风机,相互间的影响较大,存在很多不可预见因素,所以本方案风机控制均采加装变频器。
该方案经过业主方和物业方的批准后,笔者所在的公司即刻安排了精干的施工人员开始施工,为了不影响餐厅的正常营业,施工时间都安排在晚上十点以后。

施工人员紧张有序施工
经过为期半个月的紧张施工,在施工师傅的辛苦作业下,整个改造工程初步完工。完工后,公司技术人员对改造后的效果进行了严格的测试

排烟罩内排风风速
经过公司技术人员和餐厅单位领导严格仔细的验收,一致认为,此次改造项目完全达到质量要求和设计标准。极大的了餐厅的后厨环境,是一次非常成功的改造项目。
餐厅领导组织验收
谈商场内部餐饮单位排烟常见问题及注意事项
餐饮排油烟的合理设计对于大型商业综合体十分重要, 它直接会影响商业建筑的品质和价值, 跟随商业落位提前对排油烟系统进行规划并出具合理的分析方案及报告十分必要, 前期对问题的预见同样也会给后期实施带来工期及改造上的便利 。另外, 屋面排油烟设备的减震降噪、 烟气的排放方位都是综合体餐饮需要重视的问题。 当然, 除了合理的排油烟系统设计外, 还应注意机电上其它的一些设计问题, 如: 厨房是否可以进燃气, 如一些地下机房没有条件进燃气的要考虑电的预留量; 厨房的排水及隔油池是否有条件设置, 若其下部是人防或者没有地下层, 要在同层设置管沟和隔油房间对于餐饮的运行是不利的, 应在前期提出; 厨房的补风能否直接从室外补进来 , 而不要过多的吸入餐饮区或者公共区的空调风,避免这些区域出现过热现象;厨房管较多,管道交叉是否会影响商业净高也需要提前分析给予参考。
希望能通过本文对商业综合体餐饮业排油烟系统改造的记叙和观点为更为合理的商业规划和业态落位提供一些参考, 力求综合体以及餐饮企业的商业价值大化。




